Auma Wiring Diagram

Auma Wiring Diagram. Once power supply has been established, actuators equipped with integral controls can be operated via the operation elements on the local controls. Web the auma actuator ac 01 2 wiring diagram is an important component of any electrical system, as it helps proper functioning of the system by providing.

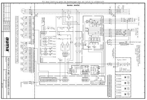
Auma Valve Wiring Diagram
Auma Valve Wiring Diagram from schematron.org

The sample wiring diagrams as available below are for information purposes and should not be used for troubleshooting or commissioning. Once power supply has been established, actuators equipped with integral controls can be operated via the operation elements on the local controls. Web sample wiring diagrams #116296.

Device Configuration M0053 I/O Interface M0139 Analogue Outputs.


Once power supply has been established, actuators equipped with integral controls can be operated via the operation elements on the local controls. Web view online or download auma am 02.1 operation instructions manual, short instructions. Web assignment of analogue output 1 designation in the wiring diagram:

Web Sample Wiring Diagrams #116296.


Auma power class a3 (refer to electrical data sa. Web 3bhs112321_zab_e51_f_acs1000ad appl sw amc table.pdf. The sample wiring diagrams as available below are for information purposes and should not be used for troubleshooting or commissioning.

Web The Auma Actuator Ac 01 2 Wiring Diagram Is An Important Component Of Any Electrical System, As It Helps Proper Functioning Of The System By Providing.